+30 210 8070499
+30 694 1400531
northprojectcompany@gmail.com
Toggle navigation
GR
|
EN
Αρχική
Πωλήσεις 
Κατοικίες
Επαγγελματικά
Οικόπεδα
Διάφορα
Ενοικιάσεις 
Κατοικίες
Επαγγελματικά
Οικόπεδα
Διάφορα
Ανάθεση
Ζήτηση
Polis 24
Προφίλ
Επικοινωνία
GR 
Greek
English
(Προς Ενοικίαση) Επαγγελματικός Χώρος Κτίριο || Ανατολική Αττική/Αχαρνές (Μενίδι) - 1.500 τ.μ, 14.000€
Χαρακτηριστικά
Περιοχή
Αχαρνές (Μενίδι) (Δ. Αχαρνών)
Υποπεριοχή
Κατηγορία
Επαγγελματικά
Τύπος
Κτίριο
Τιμή
14.000€
Εμβαδόν (τ.μ.)
1500
Τιμή/τ.μ.
9€
Γραφεία
Μπάνια
Όροφος
Ισόγειο
Έτος Κατασκευής
Τ.μ. Οικοπέδου
Θέα
Κατάσταση
Parkings
Θέρμανση
Επίπεδα
2
e-agents ID
1850350
Κωδικός
23507
Επιπλέον Χαρακτηριστικά
Εσωτερική Σκάλα
Περιγραφή
Αχαρνές (Μενίδι), Κτίριο Προς Ενοικίαση, 1.500 τ.μ., Όροφος: Ισόγειο, 2 Επίπεδο/α, Ενεργειακό Πιστοποιητικό: Γ, Kουφώματα: Αλουμινίου, Χαρακτηριστικά: Εσωτερική Σκάλα, Τιμή: 14.000€. North Project, email: northprojectcompany@gmail.com
Αναλυτική Περιγραφή
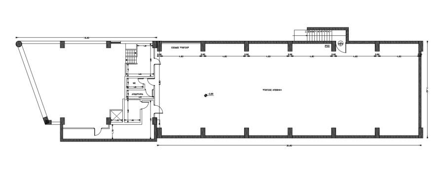
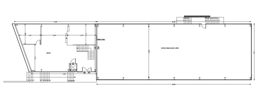
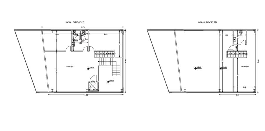
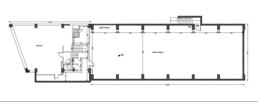
Ενοικιάζεται επαγγελματικό κτίριο 1500τμ (500τμ γραφεία και 1000τμ χώροι παραγωγής και αποθήκη) στις Αχαρνές
Χάρτης
Εμφάνιση Χάρτη
Διαδώστε το
email
facebook
twitter
pinterest
Με Ενδιαφέρει το ακίνητο
*
Υποχρεωτικό πεδίο
Υποχρεωτικό πεδίο
*
Υποχρεωτικό πεδίο
Κατά την επίσκεψή μου στην ιστοσελίδα αγγελιών ακινήτων, NORTH PROJECT REAL ESTATE, εντόπισα το ακίνητο με περιγραφή:(Προς Ενοικίαση) Επαγγελματικός Χώρος Κτίριο || Ανατολική Αττική/Αχαρνές (Μενίδι) - 1.500 τ.μ, 14.000€, Κωδ.23507, e-agentsID: 1850350 και επιθυμώ να επικοινωνήσετε μαζί μου
Υποχρεωτικό πεδίο
Δέχομαι να αποθηκεύσετε τα στοιχεία μου για την επικοινωνία και την μελλοντική ενημέρωση μου
Εισάγετε τον κωδικό
Αποστολή
Συμπληρώστε την φόρμα και πατήστε αποστολή. Τα πεδία με
*
είναι υποχρεωτικά
Ενεργειακό Πιστοποιητικό
Κατηγορία C
+30 210 8070499
+30 694 1400531
northprojectcompany@gmail.com
Ανακρέοντος 6Α, Νέα Ερυθραία 14671
Υπολογισμός Δανείου
Συμπληρώστε το Επιτόκιο (χωρίς το σύμβολο %} και τη Διάρκεια αποπληρωμής σε έτη. Αν επιθυμείτε μπορείτε να αλλάξετε και το ποσό
Ποσό
Επιτόκιο (%)
Διάρκεια (έτη)
Μηνιαία Δόση
Συνολικό ποσό
Συνολικός Τόκος
Νόμισμα
(Προς Ενοικίαση) Επαγγελματικός Χώρος Κτίριο || Ανατολική Αττική/Αχαρνές (Μενίδι) - 1.500 τ.μ, 14.000€
Χαρακτηριστικά
Έτος Κατασκευής:
Τ.μ. Οικοπέδου:
Θέα:
Κατάσταση:
Parkings:
Θέρμανση:
Επίπεδα:
2
Περιοχή:
Αχαρνές (Μενίδι) (Δ. Αχαρνών)
Υποπεριοχή:
Κατηγορία:
Επαγγελματικά
Τύπος:
Κτίριο
Τιμή:
14.000€
Εμβαδόν (τ.μ.):
1500
Τιμή/τ.μ.
9€
Γραφεία:
Μπάνια:
Όροφος:
Ισόγειο
Κωδικός:
23507
Επιπλέον Χαρακτηριστικά
Εσωτερική Σκάλα
Περιγραφή
Αχαρνές (Μενίδι), Κτίριο Προς Ενοικίαση, 1.500 τ.μ., Όροφος: Ισόγειο, 2 Επίπεδο/α, Ενεργειακό Πιστοποιητικό: Γ, Kουφώματα: Αλουμινίου, Χαρακτηριστικά: Εσωτερική Σκάλα, Τιμή: 14.000€. North Project, email: northprojectcompany@gmail.com
Στατιστικά Ακινήτου
Δημοσίευση Ακινήτου:
Τελευταία ενημέρωση:
Συνολικές επισκέψεις:
+30 210 8070499
+30 694 1400531