(Προς Πώληση) Κατοικία Μονοκατοικία || Αθήνα Βόρεια/Κηφισιά - 301 τ.μ, 5 Υ/Δ, 790.000€

Χαρακτηριστικά

Περιοχή Κηφισιά (Δ. Κηφισιάς)
Υποπεριοχή Προφήτης Ηλίας
Κοντά σε ΕΜΠΟΡΙΚΟ ΚΕΝΤΡΟ ΠΟΛΗΣ,ΗΣΑΠ ΚΗΦΙΣΙΑΣ,ΜΜΜ
Κατηγορία Κατοικίες
Τύπος Μονοκατοικία
Τιμή 790.000€
Εμβαδόν (τ.μ.) 301
Τιμή/τ.μ. 2.625€
Υ/Δ 5
Μπάνια 4
Όροφος Ισόγειο
Έτος Κατασκευής 2003
Τ.μ. Οικοπέδου 350
Θέα Βουνό
Κατάσταση Ανακαινισμένο
Parkings 2
Θέρμανση Αυτόνομη
Επίπεδα 3
e-agents ID 1888826
Κωδικός 25825

Επιπλέον Χαρακτηριστικά

Αποθήκη Κλιματισμός Διαμπερές Προσόψεως Γωνιακό Ηλιακός Πόρτα Ασφαλείας Βεράντες Εσωτερική Σκάλα Φωτεινό Βαμμένο Τζάκι Κήπος Ανακαινισμένο Πολυτελές Σοφίτα Playroom Επιτρέπονται Κατοικίδια Διπλά Τζάμια Νυχτερινό ρεύμα Σίτες
 
 

Περιγραφή

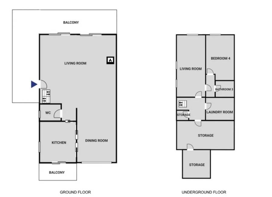
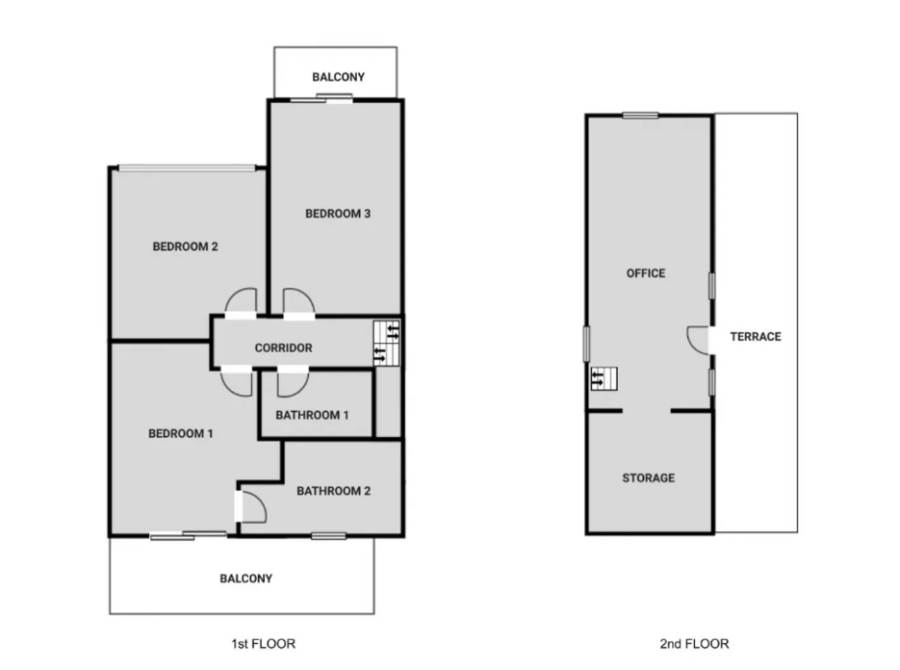
Κηφισιά, Προφήτης Ηλίας, Μονοκατοικία Προς Πώληση, 301 τ.μ., Σε οικόπεδο 350 τ.μ., Κατάσταση: Ανακαινισμένο, Όροφος: Ισόγειο, 3 Επίπεδο/α, 5 Υ/Δ (1 Master), 1 Κουζίνα/ες, 4 Μπάνιο/α, 1 WC, Θέρμανση: Αυτόνομη - Πετρέλαιο, Θέα: Βουνό, Έτος κατασκευής: 2003, Ενεργειακό Πιστοποιητικό: Β, 2 θέση/εις στάθμευσης, Δάπεδα: Μάρμαρα και Ξύλο, Kουφώματα: Αλουμινίου, Χαρακτηριστικά: Πόρτα Ασφαλείας, Αποθήκη, Τζάκι, Σοφίτα, Νυχτερινό ρεύμα, Playroom, Εσωτερική Σκάλα, Διπλά Τζάμια, Σίτες, Βεράντες, Επιτρέπονται Κατοικίδια, Πολυτελές, Διαμπερές, Προσόψεως, Φωτεινό, Γωνιακό, Κλιματισμός, Ηλιακός, Κήπος, Βαμμένο, Ανακαινισμένο, Κοντά σε: ΕΜΠΟΡΙΚΟ ΚΕΝΤΡΟ ΠΟΛΗΣ,ΗΣΑΠ ΚΗΦΙΣΙΑΣ,ΜΜΜ, Τιμή: 790.000€. North Project, email: northprojectcompany@gmail.com

Αναλυτική Περιγραφή

Ενοικιάζεται μονοκατοικία 3 επιπέδων και συνολικής επιφάνειας 301τμ στην Κηφισιά. Το ισόγειο διαθέτει σαλόνι με τζάκι, τραπεζαρία και wc επισκεπτών. Στονβ 1ο όροφο συναντάμε 3Υ/Δ (το 1 master) και μπάνιο. Στον χώρο της σοφίτας υπάρχει χώρος που μπορεί να χρησιμοποιοηθεί σαν ξενώνας ή γραφείο και αποθηκευτικό χώρο. Ο χώρος του playrrom διαθέτει καθιστικό, Υ/Δ, μπάνιο, laundry room και αποθήκη. 
Το ακίνητο επίσης διαθέτει 2 υπόγειες θέσεις στάθμευσης, κήπο κι έχει ανακαινιστεί πλήρως. 

Χάρτης

Σημεία Ενδιαφέροντος

Κοντά σε: ΕΜΠΟΡΙΚΟ ΚΕΝΤΡΟ ΠΟΛΗΣ,ΗΣΑΠ ΚΗΦΙΣΙΑΣ,ΜΜΜ

Διαδώστε το

 

Με Ενδιαφέρει το ακίνητο
*
*
Εισάγετε τον κωδικό
Συμπληρώστε την φόρμα και πατήστε αποστολή. Τα πεδία με * είναι υποχρεωτικά
Ενεργειακό Πιστοποιητικό
Κατηγορία B
Υπολογισμός Δανείου
Συμπληρώστε το Επιτόκιο (χωρίς το σύμβολο %} και τη Διάρκεια αποπληρωμής σε έτη. Αν επιθυμείτε μπορείτε να αλλάξετε και το ποσό
Νόμισμα
(Προς Πώληση) Κατοικία Μονοκατοικία || Αθήνα Βόρεια/Κηφισιά - 301 τ.μ, 5 Υ/Δ, 790.000€


Χαρακτηριστικά

Έτος Κατασκευής: 2003 Τ.μ. Οικοπέδου: 350 Θέα: Βουνό Κατάσταση: Ανακαινισμένο Parkings: 2 Θέρμανση: Αυτόνομη Επίπεδα: 3 Κοντά σε: ΕΜΠΟΡΙΚΟ ΚΕΝΤΡΟ ΠΟΛΗΣ,ΗΣΑΠ ΚΗΦΙΣΙΑΣ,ΜΜΜ
Περιοχή: Κηφισιά (Δ. Κηφισιάς) Υποπεριοχή: Προφήτης Ηλίας
Κατηγορία: Κατοικίες Τύπος: Μονοκατοικία
Τιμή: 790.000€ Εμβαδόν (τ.μ.): 301
Τιμή/τ.μ. 2.625€ Υ/Δ: 5
Μπάνια: 4 Όροφος: Ισόγειο
Κωδικός: 25825

Επιπλέον Χαρακτηριστικά

Αποθήκη Κλιματισμός Διαμπερές Προσόψεως Γωνιακό Ηλιακός Πόρτα Ασφαλείας Βεράντες Εσωτερική Σκάλα Φωτεινό Βαμμένο Τζάκι Κήπος Ανακαινισμένο Πολυτελές Σοφίτα Playroom Επιτρέπονται Κατοικίδια Διπλά Τζάμια Νυχτερινό ρεύμα Σίτες
 

Περιγραφή

Κηφισιά, Προφήτης Ηλίας, Μονοκατοικία Προς Πώληση, 301 τ.μ., Σε οικόπεδο 350 τ.μ., Κατάσταση: Ανακαινισμένο, Όροφος: Ισόγειο, 3 Επίπεδο/α, 5 Υ/Δ (1 Master), 1 Κουζίνα/ες, 4 Μπάνιο/α, 1 WC, Θέρμανση: Αυτόνομη - Πετρέλαιο, Θέα: Βουνό, Έτος κατασκευής: 2003, Ενεργειακό Πιστοποιητικό: Β, 2 θέση/εις στάθμευσης, Δάπεδα: Μάρμαρα και Ξύλο, Kουφώματα: Αλουμινίου, Χαρακτηριστικά: Πόρτα Ασφαλείας, Αποθήκη, Τζάκι, Σοφίτα, Νυχτερινό ρεύμα, Playroom, Εσωτερική Σκάλα, Διπλά Τζάμια, Σίτες, Βεράντες, Επιτρέπονται Κατοικίδια, Πολυτελές, Διαμπερές, Προσόψεως, Φωτεινό, Γωνιακό, Κλιματισμός, Ηλιακός, Κήπος, Βαμμένο, Ανακαινισμένο, Κοντά σε: ΕΜΠΟΡΙΚΟ ΚΕΝΤΡΟ ΠΟΛΗΣ,ΗΣΑΠ ΚΗΦΙΣΙΑΣ,ΜΜΜ, Τιμή: 790.000€. North Project, email: northprojectcompany@gmail.com

Στατιστικά Ακινήτου

Δημοσίευση Ακινήτου:
Τελευταία ενημέρωση:
Συνολικές επισκέψεις:
Loading...